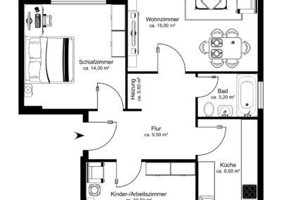
Die Wohnung
3 Wohnräume
Wohnzimmer 18,00 m²
Schlafzimmer 14,00 m²
Gäste-/Arbeitszimmer 10,00 m²
Küche 8,60 m²
Vollbad 3,20 m²
Flur 9,50 m²
Abstellnische 0,60 m²
Loggia (5,10 m²/2) 2,55 m²
In der ersten Etage des gepflegten Mehrfamilienhauses mit nur sechs Wohneinheiten erwartet Sie diese kompakte und exzellent aufgeteilte Wohnung. Dank der idealen Ausrichtung wird die Wohnung von allen Seiten mit Tageslicht verwöhnt, während der durchdachte Grundriss eine optimale Raumnutzung garantiert. Sie verfügt über eine Wohnfläche von ca. 66 qm mit einem Rundumblick in eine ruhige, gepflegte Umgebung. Vom Flur aus sind sämtliche Räume direkt zu betreten. Die Wohnung bietet ein geräumiges Wohnzimmer mit großer Fensterfront und Zugang zur nach Südwesten ausgerichteten Loggia. Erleben Sie herrliche Sonnenstunden ab dem Mittag. Für optimalen Sicht- und Sonnenschutz sorgt eine komfortable, elektrische Markise. Sie umfasst weiter eine Küche, ein Gäste- und Arbeitszimmer sowie ein helles Tageslicht-Vollbad. Eine praktische Nische im Flur schafft wertvolle Staufläche für den Staubsauger und die kleinen Dinge des Lebens, die gerne griffbereit, aber aus dem Sichtfeld verstaut sind.
Alle Wohnräume (ausgenommen Bad) sind mit modernen, elektrischen Außenrollläden ausgestattet. Ob als sommerlicher Wärmeschutz, zur vollständigen Abdunkelung oder für Ihre Privatsphäre – steuern Sie Licht und Schatten ganz bequem und mühe-los per Knopfdruck.
Zur Wohnung gehört außerdem ein großer Kellerraum (Stehhöhe) mit Fenster und ein separater Dachbodenanteil, der sich gut zum Wäsche trocknen eignet.
Die Wohnung bedarf einer Renovierung.
IN STICHWORTEN
WOHNUNG UND AUSSTATTUNG
-Lage: Loggia, Wohn- & Schlafzimmer
nach Südwesten
-Schnitt: Optimaler Grundriss mit
Abstellnische
-Böden: Teilweise Mosaikparkett
-Fenster: Kunststoff (doppelt verglast)
mit elektrischen Außenrollläden (außer Bad) -Extras: Elektrische Markise & Steckdose Loggia
& Gegensprechanlage
GEBÄUDE UND GEMEINSCHAFT
-Stauraum: Großer, trockener
Kellerraum + separater Dachboden-
anteil (Nutzung mit 1 Nachbar)
-Gemeinschaft: Wasch-/Trockenraum
(mit Waschmaschine) & Fahrradkeller
mit Außenzugang
-Abrechnung: Eigene Zähler für Wasser,
Wärme und Strom
FINANZEN
-Wohngeld: 401,00 € / Monat
-Grundsteuer: 213,00 € / Jahr
-Instandhaltungsrücklage: Sehr hoch,
ca.760.000,00 € gesamt, es fließen
jährlich 90.000,00 € in die Rücklage
Das Gemeinschaftseigentum
Gemeinschaftseigentum, das sich sehen lassen kann: Die Wohnanlage wurde im Jahre 1962 in Massivbauweise erstellt. Der Gebäudekomplex teilt sich auf in 5 Häuser und besteht aus insgesamt 118 Wohneinheiten. Der Eingang, in dem sich die Wohnung befindet, umfasst lediglich 6 Einheiten. Der Gesamteindruck der Häuser und Außenanlagen macht deutlich, dass die Eigentümergemeinschaft stets an einem optimalen Pflegezustand interessiert ist.
Die Lage
Urbane Oase in Hamburg-Wandsbek ~ Ruhiges Wohnen im Grünen: Diese Wohnung ist der perfekte Rückzugsort für Großstadtgeplagte. Gelegen in einer verkehrsberuhigten Tempo-30-Zone im Bereich der begehrten Gartenstadt, besticht die Nachbarschaft durch ihre parkähnliche Atmosphäre. Naturfreunde profitieren von der direkten Nähe zum Eichtalpark und dem idyllischen Grünzug entlang der Wandse – beide Ziele lassen sich entspannt zu Fuß erkunden.
Infrastruktur & Freizeit direkt vor der Haustür: Die tägliche Nahversorgung ist dank zahlreicher Geschäfte am Friedrich-Ebert-Damm gesichert: Supermärkte, Drogerie, Bäckereien, Kiosk und Apotheke sind nur einen kurzen Spaziergang entfernt. Für die Freizeitgestaltung stehen ein Fitnessstudio, das UCI-Kino sowie Gastronomieangebote in der unmittelbaren Umgebung zur Verfügung. Wer eine ausgiebige Shoppingtour plant, erreicht das Wandsbeker Quarree zügig mit dem Rad oder dem ÖPNV.
Perfekte Anbindung für Familien & Pendler: Die Lage zeichnet sich zudem durch eine erstklassige soziale Infrastruktur aus – sämtliche Schulformen, Kitas und Arztpraxen sind im Stadtteil ansässig.
Mobilität: Die U-Bahn-Stationen Wandsbek-Gartenstadt und Straßburger Straße (U1) sowie verschiedene Buslinien garantieren einen exzellenten Anschluss an das Hamburger Verkehrsnetz.
PKW: Über die B75 fahren Sie in etwa 20 Minuten ins Zentrum; die Autobahn A1 (Horner Kreisel) ist rund 5 km entfernt.
Was Sie sonst noch wissen sollten
Der Grundriss ist nicht maßstabsgerecht.
Haben wir Ihr Interesse geweckt?
Gerne senden wir Ihnen das ausführliche Exposé zur Wohnung, zum Gemeinschaftseigentum und zur Lage zu.
Vereinbaren Sie Ihren privaten Besichtigungstermin und entdecken Sie diese Wohnung in einem vertrauensvollen Rahmen.
Wir freuen uns auf Ihre E-Mail oder Ihren Anruf!
Sonstiges
Bei aller Sorgfalt können wir keine Gewähr dafür übernehmen, dass die hier gemachten Angebotsangaben, die uns ausschließlich vom Auftraggeber oder von Dritten übermittelt wurden, richtig sind.
Weitere Daten
- Baujahr 1962
- Fernwärme
- Energieverbrauchsausweis 151 kWh/(m²*a)
- Es besteht die Möglichkeit in der Nähe einen PKW-Stellplatz anzumieten (ohne Gewähr).
Kosten
- Kaufpreis € 295.000,–
- Hausgeld mtl. € 401,–
- Provision für Käufer 3,57 % inkl. MwSt.
Der Makler-Vertrag mit uns kommt durch schriftliche Vereinbarung oder durch die Inanspruchnahme unserer Maklertätigkeit auf der Basis des Objekt-Exposés u. seiner Bedingungen zustande. Die Käufercourtage i. H. von 3,57 % auf den Gesamtkaufpreis einschl. gesetzl. Mwst. ist bei notariellem Vertragsabschluss verdient und fällig. Die Fa. Maike Schlöbohm Immobilien erhält einen unmittelbaren Zahlungsanspruch gegenüber dem Käufer. Grunderwerbsteuer, Notar-u. Gerichtskosten trägt der Käufer.




